5人の建築家が「サザエさんの家」を建て替え!?-「家をつくろう展」に行ってみた!住まいの本当と今を伝える情報サイト LIFULLHOME& 039;S PRESS。
サザエさん 家の中 (413 無料画像)
5月31日放送のTVアニメ『サザエさん』は「カツオのいない磯野家」ほか過去回を再放送!前回のじゃんけんは「パー」超!アニメディア。
サザエさんのオープニングの家の中が面白すぎたww - YouTube。
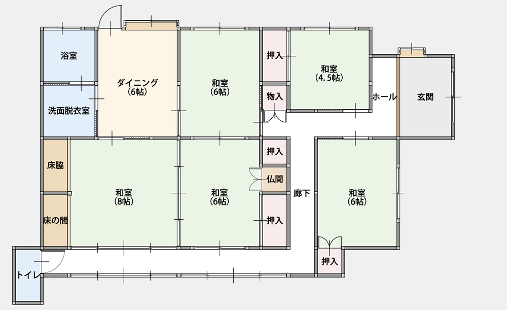
サザエさん家の間取りが面白い!磯野家を真似してみよう越谷でカッコイイ家を、つくろう。
サザエさん“磯野家”も完全再現、作品から推察1年制作者が語る“間取り愛”オリコンニュース ORICON NEWS。
建築家がサザエさん家をつくってみたらこうなった - ライブドアニュース。
便利でおしゃれなサザエさん宅でシェア暮らし。 - 物件ファン。
サザエさんの家から 学ぶ日本家屋。
磯野家 サザエさん に学ぶ間取り術家づくりガイド記事 くふうイエタテ。
間取り探偵『サザエさん』~世田谷区桜新町二丁目-名作マンガ・アニメの間取りを推理-イエマガ。
本誌大特集『家の力』発売記念スペシャル企画『サザエさん』磯野家の一家団らん幸せのヒミツとは?! – モノ・マガジンweb。
本誌大特集『家の力』発売記念スペシャル企画『サザエさん』磯野家の一家団らん幸せのヒミツとは?! – モノ・マガジンweb。
サザエさん家のタマは幸せか?猫にとって一番大事な住環境とは 猫の一休建築士。
次回 2月2日放送のサザエさん - アニメ「サザエさん」公式ブログ。
磯野家 サザエさん に学ぶ間取り術家づくりガイド記事 くふうイエタテ。
サザエさん展in広島、磯野家の近くに自分の家も建てられるよ。
サザエさん“磯野家”も完全再現、作品から推察1年制作者が語る“間取り愛”オリコンニュース ORICON NEWS。
実写「サザエさん」20年後の家族写真が解禁、幻の8人目も65年ぶりに登場 コメントあり- 映画ナタリ。
大みそかは『サザエさん』で家族団らん! 12月31日にも放送決定! - アニメ「サザエさん」公式ブログ。
10年後のサザエさん家の悩みを低予算リフォームで解決してみた。 - 女子大学生が日々奮闘したりしなかったりするやつ。
サザエさん磯野家の再現動画。
建築家がサザエさん家をつくってみたらこうなった。
磯野家の「間取り」描けますか? あなたの知らない「サザエさん」豆知識: J-CAST ニュース 全文表示。
間取り探偵『サザエさん』の別荘!?編 長谷川町子-名作マンガ・アニメの間取りを推理-イエマガ。
サザエさんの家の価値は? 昭和と令和の“間取り”が示す時代の変化:火曜日に「へえ」な話 3 3 ページ- ITmedia ビジネスオンライン。
サザエさん』の終わりの歌で、伸び縮みする山小屋。なかでは何が起こってるんだろう? 柳田理科雄- エキスパート - Yahoo!ニュース。
間取り探偵『サザエさん』の別荘!?編 長谷川町子-名作マンガ・アニメの間取りを推理-イエマガ。
サザエさんの家から 学ぶ日本家屋。
続・玄関カスタム中。鉄は熱いうちに打て。
サザエさん』20年後のキャスティングに反響 『磯野家の人々』スタッフが語る、制作の裏側 - ぴあ映画。
サザエさんに出てきた裏爺宅の風呂が「現在では設置を禁止されているCF式風呂釜」だった - Togetter。
フジテレビ 磯野家の傑作選でございま~す! アニメ『サザエさん』 2005年~2008年放送の登場人物別・傑作選50作を配信開始株式会社フジテレビジョンのプレスリリース。
5月31日放送のTVアニメ『サザエさん』は「カツオのいない磯野家」ほか過去回を再放送!前回のじゃんけんは「パー」超!アニメディア。
ギオ on X: "今更ながら以前開催されていた「サザエさん展 THE REAL」の潜入レポート記事を書きました。 ここで判明したトリビア劇中 で見られない「磯野家のトイレ」は「くみ取り式&男性用小便器」です。 https:t.co hM8IZ8qiqkサザエさんnotehttps:t.co。
サザエさんのエンディングの「家に飛び込むシーン」の家の中はこうなっていたBUZZmag。
サザエさんの家の間取り紹介!シアーズホームの家づくり。
キャラクター紹介 伊佐坂家サザエさん - 公式ホームページ。
日本で最も知られている間取りは? - SUMAU - あなたの日常に、心動かす出会いをデザインするモリモトのWEBメディア。
建築家がサザエさん家をつくってみたらこうなった。
1億円超 サザエさんの家の間取りと豪華な暮らしを徹底解説。
サザエさん家の間取りを間取り診断してみた~二世帯住宅とプライバシーを考えるtakumi。
ホームズ間取り探偵・あの家の間取りを大推理! サザエさんちの5年後はどうなっている?住まいのお役立ち情報。
磯野家 サザエさん に学ぶ間取り術家づくりガイド記事 くふうイエタテ。
サザエさん家の間取りが面白い!磯野家を真似してみよう越谷でカッコイイ家を、つくろう。
Japanese traditional and famouse house. Isono-house. - YouTube。
本誌大特集『家の力』発売記念スペシャル企画『サザエさん』磯野家の一家団らん幸せのヒミツとは?! – モノ・マガジンweb。
サザエさん展 THE REAL」を岩田屋で見てきた! ファンファン福岡。
サザエさんの家から 学ぶ日本家屋。
長崎まちねた。○磯野家へようこそ!「みんなのサザエさん展」。
サザエさん 家の中身TikTok。
サザエさん“磯野家”も完全再現、作品から推察1年制作者が語る“間取り愛”オリコンニュース ORICON NEWS。
サザエさん“磯野家”も完全再現、作品から推察1年制作者が語る“間取り愛”オリコンニュース ORICON NEWS。
サザエさんのエンディングの家きよしのチェンジアップ。
サザエさんの家みたいなシェアハウスが住居者を募集中!縁側なび。
サザエさんの『エンディングで弾け飛ぶ家』中はとんでもない修羅場でした! – grapeグレイプ。
サザエさん家の最後のシーンTikTok。