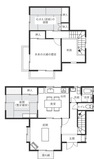
なぜ空き家は増えるのか?そのヒントが、人気アニメの間取りに隠されていた。
ちびまる子ちゃん 家間取り図 (483 無料写真)
名作アニメのおうちの間取♪ 不動産 土地・新築・中古住宅・マンション、テナント のことならFind.r ファインドアールFind r。
ニシキドアヤト on X: " 書きました国民的アニメ『ドラえもん』『クレヨンしんちゃん』、『ちびまる子ちゃん』に『サザエさん』、みんな結構いい家 に住んでるけど、あの家は売ったらいくらになるんだ? と気になったので、全ての家の間取りを調べ、専門家に価値を聞い。
サザエさんの家から 学ぶ日本家屋。
Japanese traditional house "Sakura house"Created with twinmotion - YouTube。
古河市、野木町の安心リフォーム専門店 ハッピーリフォームセンターまんが主人公の間取り。
ドラえもん 家 間取り図 のび太クンの家の間取り完成with BG5のブログやりこ~く,ゆる~く,ボチボチと- みんカラ ちびまる子ちゃん。
サザエさん&ちびまる子ちゃんの? 有限会社三ヶ森製畳。
ちびまる子ちゃんの家の間取りを作ってみました! ちびまる子ちゃん 家 間取り大真オフィシャルブログ。
ちびまる子ちゃん みんなの学校と まるちゃん家。
アニメの間取りケーズプランニング - 福島のデザイン住宅設計・施工・インテリア・エクステリア。
ちびまる子の家」の間取りをリフォームした間取りシミュレーション - 楽天ブログ。
名作漫画から学ぶ日本の間取りの変化!昭和20年~バブル期の戸建て住宅の変遷大阪市内で一戸建てをお探しなら長居公園近くのむとうの家。
🏠あの国民的アニメ🏠 ちびまる子ちゃんの家の間取りを辛口評価!😂 誰もが知っている、ちびまる子ちゃん🏡 実は、間取りに問題点が ?🤔✔️キッチンが孤立していて、リビングやダイニングとのコミュニケーションが取りづらい🗣️ ✔️トイレが家の端っこにあって、冬は。
さくら家の台所は最悪!?アニメで考えるキッチンの間取りとろとろのお家*スウェーデンハウス の注文住宅*。
有名アニメ お家の間取り図!パソコン教室あすなろブログ。
ちびまる子ちゃん さくら家を再現してみた!宮城の田舎暮らし。
名作アニメのおうちの間取♪ 不動産 土地・新築・中古住宅・マンション、テナント のことならFind.r ファインドアールFind r。
まる子ちゃん家 間取り図TikTok。
ドラえもん 家 間取り図 のび太クンの家の間取り完成with BG5のブログやりこ~く,ゆる~く,ボチボチと- みんカラ ちびまる子ちゃん。
二世帯住宅の家づくり│ 長野の工務店 住まいの豆知識。
漫画やアニメに出てくる家の間取り。
リフォーム間取のレシピ⑥~ちびまる子ちゃんうまもつこ@主婦建築士の快適生活。
ちびまる子ちゃんの家の値段をAIが査定してみたら~地方都市の広々平屋ライフ~ 2025年最新版HowMaマガジン家 を売る、いつか売るに備えるWEBメディアです。
ホームズ間取り探偵⑫ 20年の間に微妙に変化していた!「ちびまるこちゃん」さくら家住まいのお役立ち情報。
古河市、野木町の安心リフォーム専門店 ハッピーリフォームセンターまんが主人公の間取り。
ちびまる子ちゃんの家の間取りとリフォーム前と後、平屋27坪平屋間取り。
アニメに出てくる一軒家の「間取り図」4選ファインドゼロ。
建子と直美のリフォームトーク~マンガやドラマの間取り研究も楽しい~2世帯暮らしリフォーム&リノベーションを進め方!北海道の施工会社探しなら!施工事例・会社情報・イベント情報。
サザエさんの家とちびまる子ちゃん家は平屋の二世帯住宅市川市の工務店DAISHU二世帯住宅もお任せください自然素材・高耐震・高断熱の注文住宅。
ホームズ間取り探偵⑫ 20年の間に微妙に変化していた!「ちびまるこちゃん」さくら家住まいのお役立ち情報。
アニメの間取り岡山県備前市のリフォーム店寺見建設。
古河市、野木町の安心リフォーム専門店 ハッピーリフォームセンターまんが主人公の間取り。
ちびまる子ちゃん さくら家を再現してみた!宮城の田舎暮らし。
ちびまる子ちゃんのさくら家の間取りを診断してみたtakumi。
ちびまる子ちゃんの間取り名古屋市のマンション・戸建て、生活に寄り添う住宅リフォーム・リノベーションなら株式会社いし満へ。
積木組 デザイン部 れいこ部長の『進め!必殺仕事人☆』φ ; :のび太君のおうち゚ω゚。
アニメに出てくる一軒家の「間取り図」4選ファインドゼロ。
なぜ空き家は増えるのか?そのヒントが、人気アニメの間取りに隠されていた2017年11月24日- エキサイトニュース。
ちびまる子ちゃん みんなの学校と まるちゃん家。
しあわせなLDKのつくり方旧三福不動産小田原市にある不動産&リノベーションの会社。
コの字の平屋の間取り案。
ちびまる子ちゃん にぎやかまるちゃん家+まるちゃんの部屋。
木の家¥シミュレータ。
国民的アニメの主人公が住む家って売ったらいくらなの? 調べたら泣けた。
間取り改修例 ちびまる子版たまプラーザ団地。
しんちゃん 野原家の間取りを大調査!知られざる真実が明らかに! - イエマドリ。
🏠あの国民的アニメ🏠, ちびまる子ちゃんの家の間取りを辛口評価!😂, 誰もが知っている、ちびまる子ちゃん🏡, 実は、間取りに問題点が ?🤔,✔️キッチンが孤立していて、リビングやダイニングとのコミュニケーションが取りづらい🗣️, ✔️トイレが家の端っこにあって、冬は寒くて危険⚠️,✔️回遊性のない間取りで、部屋の行き来がしづらい🚶♀️🚶♂️, などなど ,。
ちびまる子ちゃん にぎやかまるちゃん家。
ホームズ間取り探偵⑦ 実はバブル期の物件だった!クレヨンしんちゃん野原家の間取り住まいのお役立ち情報。
再現 ちびまるこちゃんさくら家の間取りを考察 3shorts。
古河市、野木町の安心リフォーム専門店 ハッピーリフォームセンターまんが主人公の間取り。
さくら家を建築士が勝手にリフォームしてみた🏠, , 「ちびまる子ちゃんでも作って欲しい!」,というコメントやメッセージを沢山頂いたので作りました!, ,前回までの投稿では玄関や窓、水周り設備などはなるべく利用していくというように作りましたが、, ,今回は形はそのままで同じボリュームで住みやすく、, という考え方にしました!, , , ,。
ちびまる子ちゃん家の間取りを徹底解説!よく見るとどこかおかしい!? - イエマドリ。
古河市、野木町の安心リフォーム専門店 ハッピーリフォームセンターまんが主人公の間取り。
ホームズ間取り探偵⑫ 20年の間に微妙に変化していた!「ちびまるこちゃん」さくら家住まいのお役立ち情報。
まる子ちゃん家 間取り図TikTok。
ホームズ間取り探偵⑫ 20年の間に微妙に変化していた!「ちびまるこちゃん」さくら家住まいのお役立ち情報。
アニメドラマから学ぶ住まいづくり 「ゆとり」のある間取り建築の知識三井住友トラスト不動産。
漫画やアニメに出てくる家の間取り。
館内のご案内ちびまる子ちゃんランド。